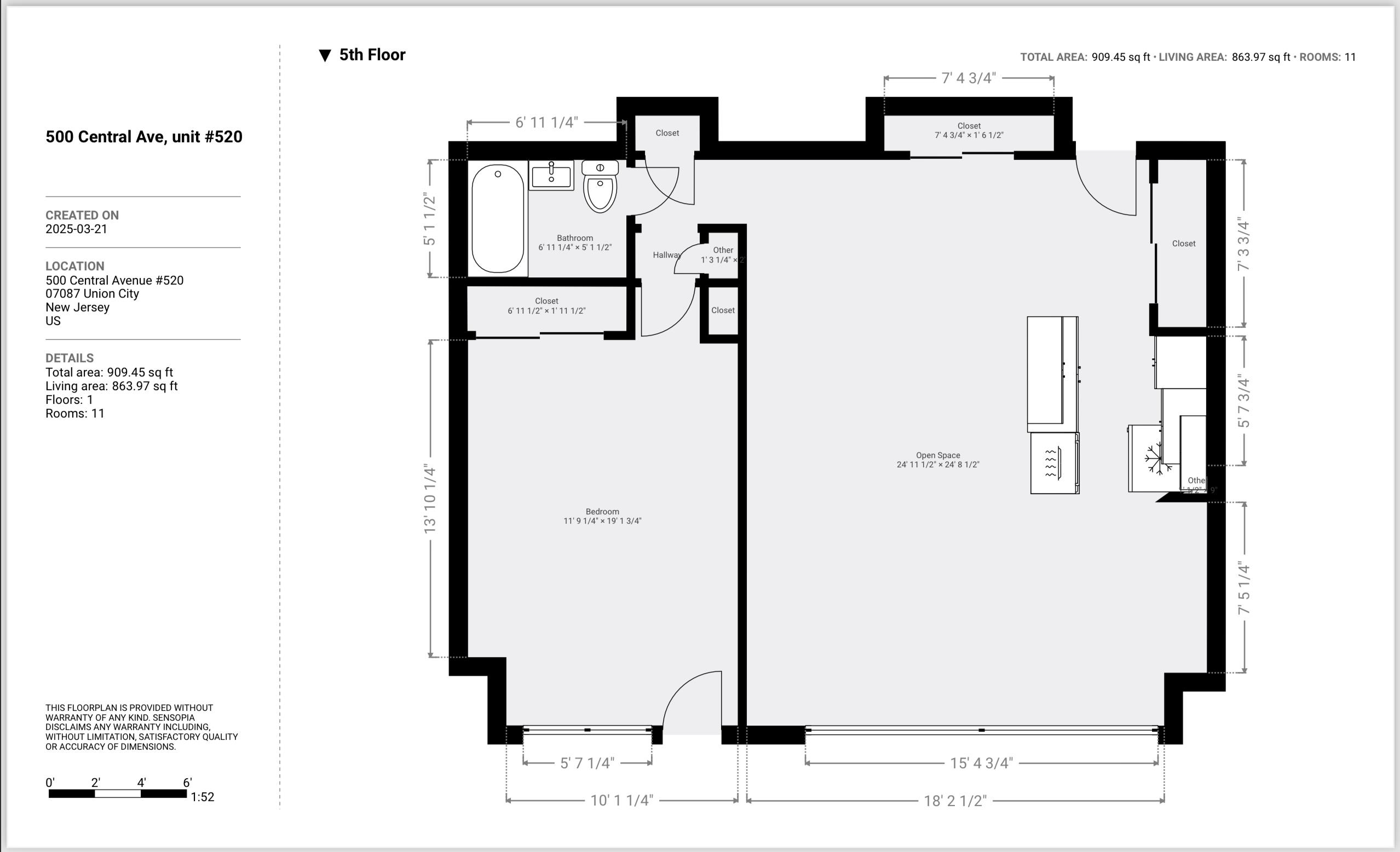
500 CENTRAL AVE #520

Union City, NJ 07087

$385,000

1 bd / 1 ba / 861 sq ft

Property Tax: $4,856/year

HOA Fee: $675

Spacious and sun-filled 1-bedroom condo at The Lenox with private balcony and unobstructed western sunset views. Features include granite countertops, stainless steel appliances, hardwood floors, and ample closet space. The building offers a fitness center, 24-hour concierge, elevator, outdoor BBQ area, and a PATH shuttle. Located near the Hoboken/Jersey City Heights border with easy access to the Lincoln Tunnel and NJ Transit Light Rail elevator. Close to shops, restaurants, parks, and everyday essentials. Solid layout, natural light, and move-in ready condition make this a standout in the building. New flooring recently added. Inquire about potential low rate first time buyer program.

Listed By:

RALPH SCHELL: (201) 798-3300,
COLDWELL BANKER REALTY
Source: hudson, MLS#: 236801077

Schedule a tour with a SILVERMAN agent

719 Cypress Street

6 bd / 4 ba
$1,300,000

25 Ackerman Road

6 bd / 4 ba
$2,449,000

75 Mazur Place

5 bd / 4 ba
$1,125,000

200 Stabled Way

10 bd / 10 ba
$22,500,000

675 Ramapo Valley Road

21 bd / 19 ba
$19,000,000

161 18th #4C

1 bd / 1 ba
$285,000