1608 86TH ST

North Bergen, NJ 07047

$649,900

5 bd

Property Tax: $10,136/year

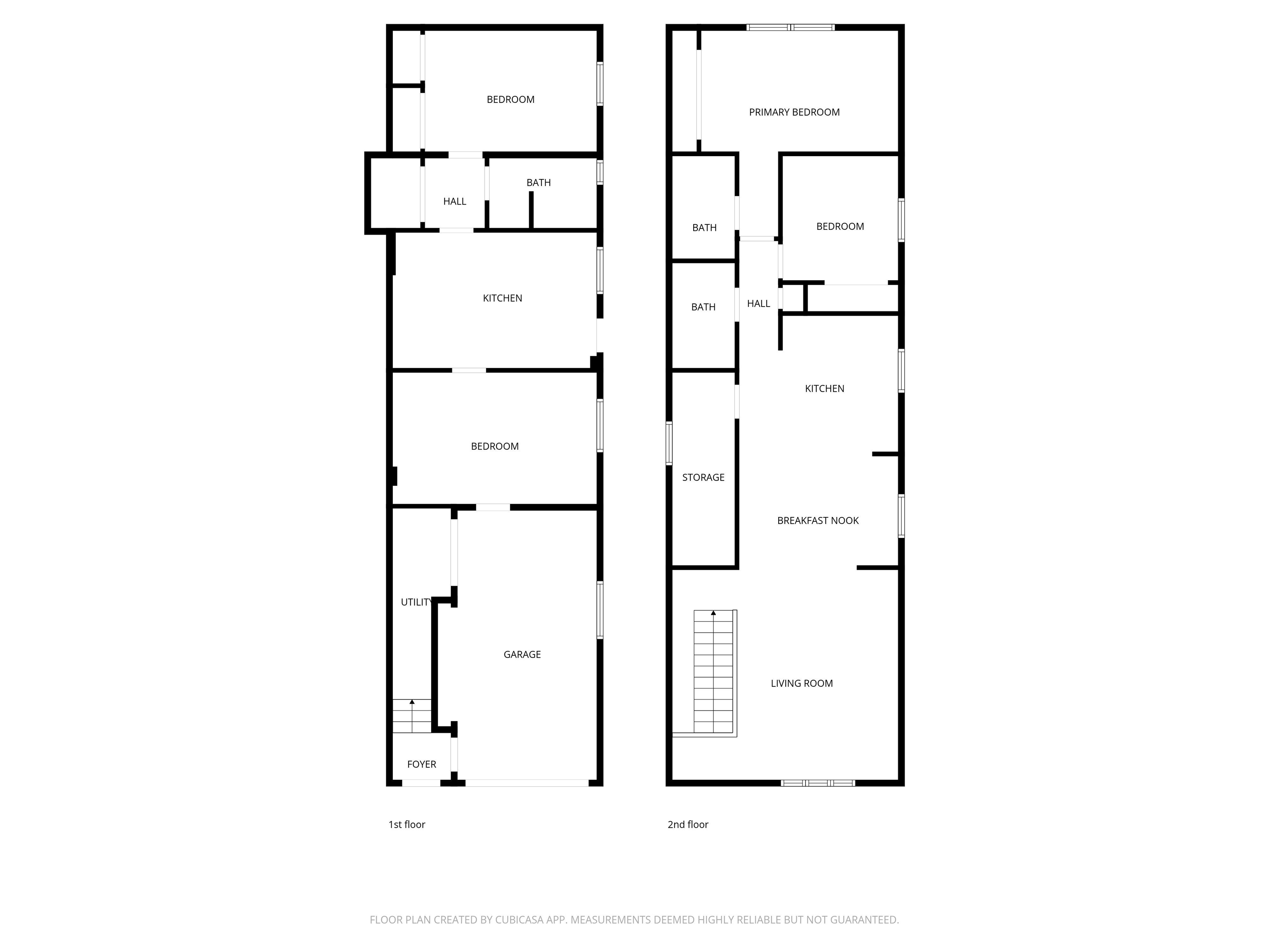
If you’ve been searching for a spacious home and haven’t found the right one yet, this is it! One of the few extended-family homes in North Bergen, this property offers everything you need: 5 bedrooms, 3 full bathrooms, a main kitchen, a summer kitchen, and a laundry room.This contemporary home features a large garage on the first floor, along with a laundry and utility room. The first level also includes a two-bedroom living space with one full bathroom, backyard access, and ample closet space.The second floor boasts a bright and inviting living room, a connected dining area, and a spacious main kitchen. This level offers three bedrooms, including a primary suite with a private full bathroom, plus two additional bedrooms and a shared full bathroom. Conveniently located near major highways and shopping, this property is a commuter’s dream with easy access to NYC. Don’t miss this opportunity!

Listed By:

MARTIN BIANCHI: (551) 284-0175,
COMPASS NEW JERSEY, LLC
Source: hudson, MLS#: 240730918

Schedule a tour with a SILVERMAN agent

719 Cypress Street

6 bd / 4 ba
$1,300,000

25 Ackerman Road

6 bd / 4 ba
$2,449,000

75 Mazur Place

5 bd / 4 ba
$1,125,000

200 Stabled Way

10 bd / 10 ba
$22,500,000

675 Ramapo Valley Road

21 bd / 19 ba
$19,000,000

161 18th #4C

1 bd / 1 ba
$285,000