160 County Road 565

Wantage Twp. 07461

$449,000

4 bd / 1 ba / 1,752 sq ft

Property Tax: $7,021/year

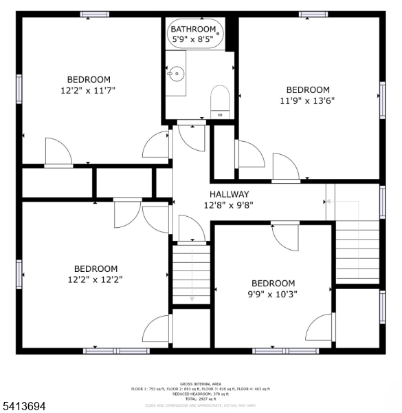
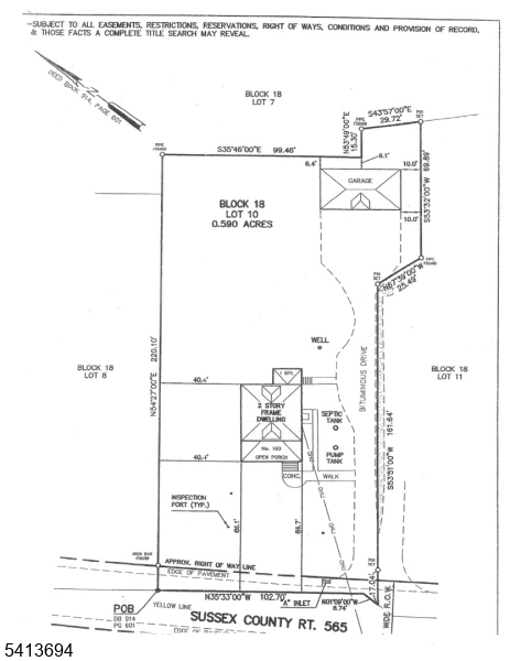
SALE INCLUDES ADDITIONAL LOT (.67 ACRE). This is your opportunity to own a classic 1920s home filled with character, space, and lasting value. Offering 1,752 square feet of living space plus a partially finished basement, this property blends timeless architectural detail with the chance to create updates that reflect your style while building equity. A traditional center hallway leads to bright Living and Dining Rooms highlighted by early 20th-century woodwork and natural light. Beneath the laminate flooring lies hardwood ready to be restored. The kitchen and bath areas provide an excellent opportunity for thoughtful modernization. The 20′ x 20′ Trex deck and front porch extend the living space outdoors, ideal for relaxing or entertaining guests, and a convenient half bath completes the first floor. Upstairs features four spacious bedrooms with hardwood flooring and a full bathroom. A walk-up attic offers great storage and future expansion potential. The partially finished basement provides flexible space for a home office, gym, or hobby area, along with a storage/Utility Room. Outside, enjoy a detached 4-car garage, RV pad with electric hookup, a large level yard, and an additional .67-acre parcel across the street for expanded yard space or parking flexibility. Major improvements include newer windows, a 9-year-old roof, new Roth oil tanks, water purification system, heating upgrades, and completed septic, water, and building inspections. Schedule your private tour today.

Listed By:

: (973) 293-0085,
KRUMPFER REALTY GROUP
Source: gsmls, MLS#: 239403873

Schedule a tour with a SILVERMAN agent

719 Cypress Street

6 bd / 4 ba
$1,300,000

25 Ackerman Road

6 bd / 4 ba
$2,449,000

75 Mazur Place

5 bd / 4 ba
$1,125,000

200 Stabled Way

10 bd / 10 ba
$22,500,000

675 Ramapo Valley Road

21 bd / 19 ba
$19,000,000

161 18th #4C

1 bd / 1 ba
$285,000