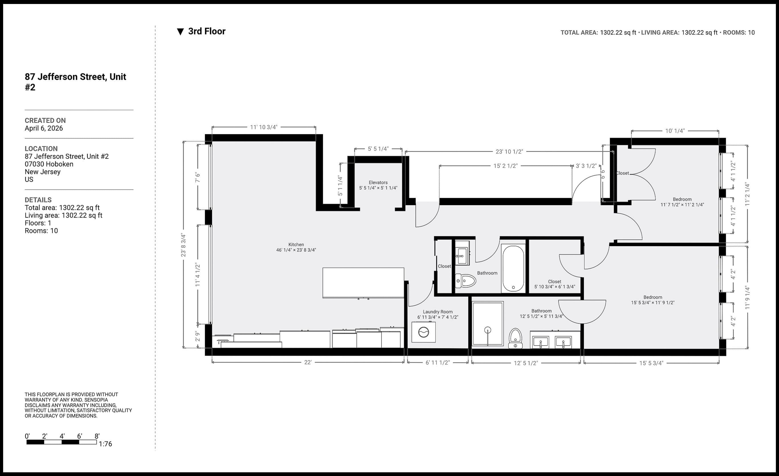
87 JEFFERSON ST #2

Hoboken, NJ 07030

$1,395,000

2 bd / 2 ba / 1,254 sq ft

Property Tax: $0/year

HOA Fee: $567

Prime Hoboken location—brand-new, ground-up construction 2-bedroom, 2-bath residence showcasing exceptional craftsmanship and thoughtfully curated high-end finishes throughout. Ideally situated to enjoy the very best of Hoboken, with close proximity to top dining, shopping, parks, and convenient NYC transportation. The chef’s kitchen is a true centerpiece, featuring top-of-the-line Thermador appliances and a designer tile backsplash. Wide-plank 7-inch, 3/4-inch engineered hardwood floors run seamlessly throughout the home, complemented by rich walnut trim, creating a warm and sophisticated aesthetic. Soaring 9-foot ceilings and oversized windows fill the space with abundant natural light. Enjoy the privacy and convenience of direct elevator access opening directly into your residence. Additional features include a large-capacity Electrolux washer and dryer, custom wardrobe closets with 8-foot walnut doors, individually zoned Mitsubishi HVAC systems with personalized remote controls, an energy-efficient tankless hot water heater, and an ERV system providing continuous fresh air circulation. Elegant brass bath fixtures and door hardware complete this refined and modern home. Parking available in local garage

Listed By:

VICTOR JALINOS: (201) 420-7393,
CORCORAN SAWYER SMITH
Source: hudson, MLS#: 240807013

Schedule a tour with a SILVERMAN agent

719 Cypress Street

6 bd / 4 ba
$1,300,000

25 Ackerman Road

6 bd / 4 ba
$2,449,000

75 Mazur Place

5 bd / 4 ba
$1,125,000

200 Stabled Way

10 bd / 10 ba
$22,500,000

675 Ramapo Valley Road

21 bd / 19 ba
$19,000,000

161 18th #4C

1 bd / 1 ba
$285,000