188 E Mount Pleasant Ave

Livingston Twp. 07039

$899,000

5 bd / 4 ba

Property Tax: $14,397/year

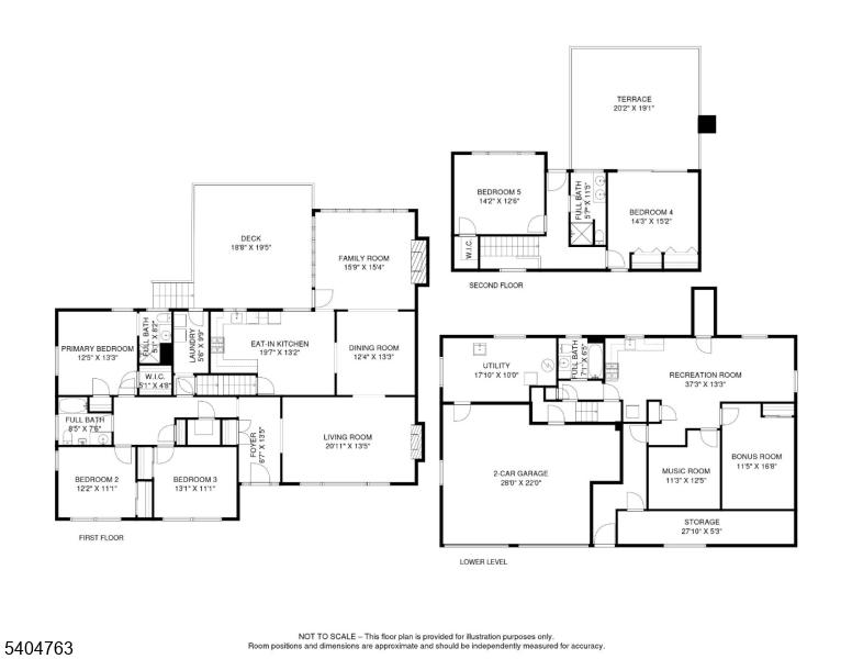
Located in the Heart of Livingston on .34 acres & boasting over 3200 sq ft of living space incl. FINISHED basement. EASY LIVING 5-bedroom, 4-bath expanded ranch w/ the convienience of 3 bedrooms (incl. Master En-suite) & 2 Full baths on the main level. Welcoming foyer opens to a SEAMLESS LAYOUT with generously sized rooms throughout including BRIGHT EAT-IN kitchen overlooking deck and private yard + nice sized Family Room ADDITION – perfect for entertaining. Upper level offers two generous bedrooms overlooking the backyard, each with access to a shared balcony, plus a spacious full bath with double vanity and shower. The basement provides excellent bonus space w/recreation room, media room, home office, storage and TONS of POTENTIAL to customize the space with direct access to the outside. Additional highlights include main level laundry room, walk-in pantry, oversized two-car garage and parking for approximately 7 vehicles, a rare find in this prime location. This property offers multiple living areas for added flexibility fitting a variety of needs. A fantastic opportunity to customize and create your dream home. Home is being sold strictly AS-IS.

Listed By:

: (973) 994-4323,
COLDWELL BANKER REALTY
Source: gsmls, MLS#: 237282053

Schedule a tour with a SILVERMAN agent

64 Stony Ridge Road

5 bd / 6 ba
$4,295,000

719 Cypress Street

6 bd / 4 ba
$1,300,000

25 Ackerman Road

6 bd / 4 ba
$2,449,000

28 Geraldine Court

6 bd / 7 ba
$4,785,000

51 Chestnut Ridge Road

5 bd / 6 ba
$5,900,000

711 Camperdown Road

7 bd / 5 ba
$1,895,000